CHASCOMÚS

Casa Canadiense en Chascomus

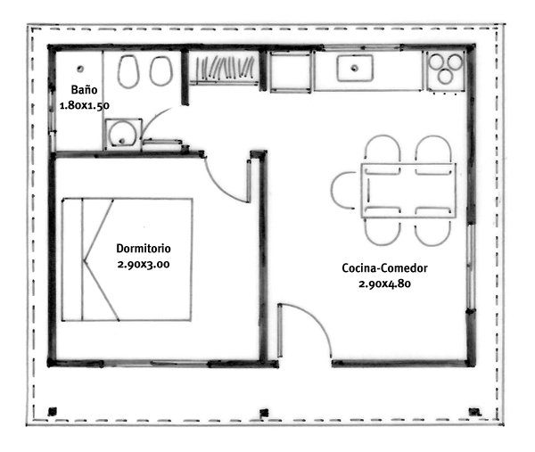
Vivienda familiar  30 m2 cubiertos – 6 m2 semicubiertos.

Cocina–comedor, 1 dormitorio , 1 baño completo, galería.

Fachada casa canadiense chascomus

Plano Casa Canadiense Chascomus
Sombra de slider