ITUZAINGO

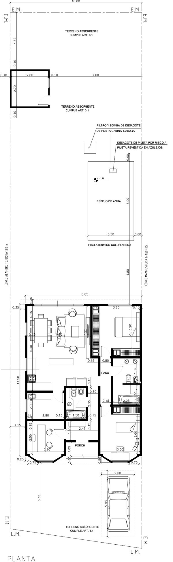
Vivienda familiar 100 m2 cubiertos – 4 m2 semicubiertos. Living–comedor, Cocina integrados, 3 dormitorios, 2 baños completos.











































Sombra de slider