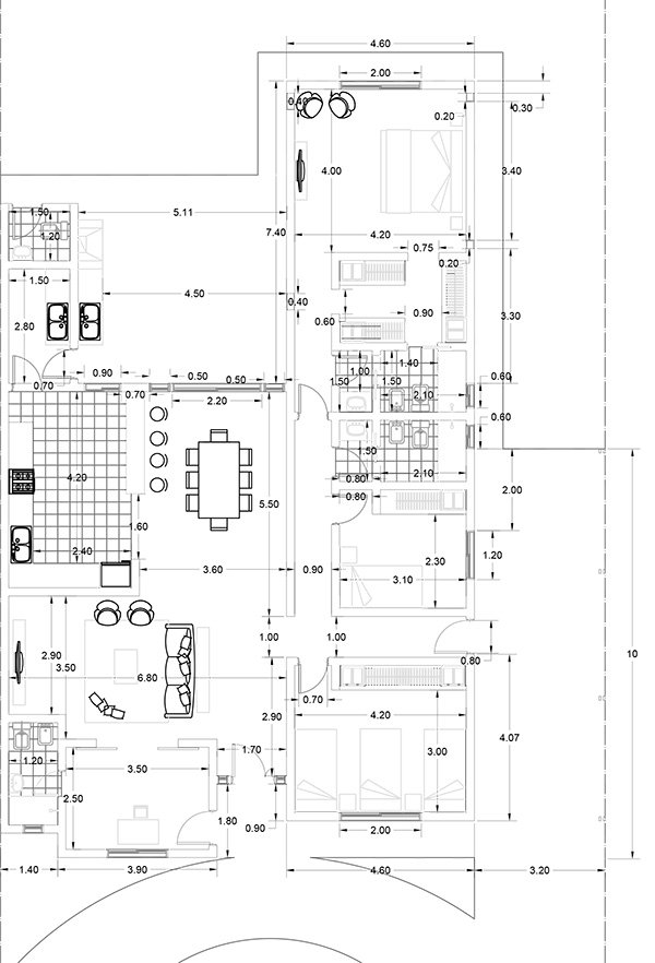
LUJÁN

Vivienda familiar 165 m2 cubiertos – 20 m2 semicubiertos. Living–comedor, cocina integrados, 3 dormitorios, 2 baños completos, dormitorio principal en suite con vestidor, lavadero, galería con parrilla - toillette.





Sombra de slider