OPEN DOOR

Casa Canadiense Open Door

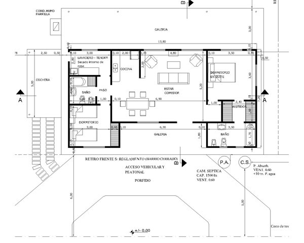
Vivienda familiar 88 m2 cubiertos – 54 m2 semicubiertos. Living–comedor, cocina americana, 2 dormitorios (1 en suite con vestidor), 1 baño completo, lavadero, cochera americana, galería.

Fachada Casa Canadiense

Plano de Obra de casa canadiense

Cocina comedor Casa Canadiense

Habitaciones casa canadiense
























Sombra de slider